Зимний каркасный дом "Пасадер" 126м2 с террасой в Кронштадте

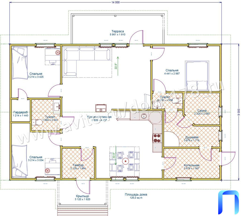
Дом каркасный Зимний для постоянного проживания "ПАСАДЕР" 14м*9м (126мкв+терраса 19мкв) Зимний одноэтажный каркасный дом для постоянного проживания с большой кухней-гостиной и тремя спальнями и сауной. Теплая конструкция дома с панорамными энергоэффективными окнами, позволит наслаждаться загородной жизнью с комфортом. Площадь дома 126 м2, а его габариты 14х9м, терраса 6х2м и 3,5х1,8м. 〰️〰️〰️〰️〰️〰️〰️〰️〰️〰️〰️ О ПРОЕКТЕ: Название проекта: "ПАСАДЕР" Назначение дома: для ПМЖ Пятно застройки: 14х13м Жилая площадь: 14х9м 126м2 Площадь террас: 2х6м 12м2, 3,5х1,8м 6,5м2 Количество спален: 3шт Количество сан узлов: 2шт Сауна: есть Котельная: есть 〰️〰️〰️〰️〰️〰️〰️〰️〰️〰️〰️ ПОЧЕМУ ВЫБИРАЮТ НАС: ✅ Мы работаем без предоплат!! ✅ Наши дома можно посмотреть вживую, всегда в работе от 5 объектов на разных стадиях !! ✅ Смета прозрачная, прикрепляется к договору, без роста цен в процессе строительства !! ✅ Мы ценим время наших клиентов, поэтому все цены и информация в объявлении актуальны, без скрытых платежей !! 〰️〰️〰️〰️〰️〰️〰️〰️〰️〰️〰️ ЦЕНА: 🏡 "ПАСАДЕР" 14х9м 💲 Без отделки* 2 332 000р 💲 С отделкой** 2 804 000р *Без отделки - дом без внутренней отделки и настила полов. **С отделкой - отделка пол: ОSВ-3 18 мм (+25 мм доска) Внутренняя отделка стены: ГКЛ 12 мм Внутренняя отделка потолок: Натяжной (белый) ДОПОЛНИТЕЛЬНО: 💲 Фундамент ЖБИ сваи 150*3м: 168 200р 💲 Доп. утепление +50мм: 128 400р 💲 Замена кровли на металлочерепицу: 86 600р 💲 Электрика: 252 000р 💲 Сантехника: 74 500р 💲 Вентиляция: 66 400р 💲 Покраска фасадов: 127 200р 💲 Внутренняя отделка вагонкой: С отделкой** +326 100р. 💲 Внутренняя отделка Имитацией бруса: С отделкой** +686 900р. В СТОИМОСТЬ ВСЕ ВКЛЮЧЕНО: ✅ Материалы ✅ Работа ✅ Доставки до 50км от СПБ. 🔔 ЦЕНА ИТОГОВАЯ, СКРЫТЫХ ПЛАТЕЖЕЙ НЕТ! 〰️〰️〰️〰️〰️〰️〰️〰️〰️〰️〰️ ХАРАКТЕРИСТИКИ ДОМА: ✔️ Высота потолков: 2.6м ✔️ Наружные стены: Каркас 100мм ✔️ Перекрытия полов: Каркас 200мм ✔️ Перекрытие чердачное: Каркас 150мм ✔️ Крыша: Двухскатная 150мм ✔️ Кровля: Ондулин Smаrt 3мм (Цвет: зелёный, красный, коричневый, черный) ✔️ Наружная отделка: Имитация бруса камерной сушки 20х146х6000мм хвоя сорт АВ ✔️ ** Внутренняя отделка пол: ОSВ-3 15мм ✔️ **Внутренняя отделка стены: ГКЛ 12мм ✔️ **Внутренняя отделка потолок: Натяжной белый. ✔️ Утепление: Rоскwооl Лайт Баттс Скандик 100 мм +50мм (Можно заменить на ПЕНОПОЛИУТАНОВУЮ пену от 100мм (уточните стоимость замены)) ✔️ Входная дверь: Металлическая (РФ) ✔️ Материал каркаса: Доска обрезная сорт 1, обработка антисептиком 📄 Характеристики, материалы и планировка, могут быть изменены для соответствия Вашим пожеланиям. 〰️〰️〰️〰️〰️〰️〰️〰️〰️〰️〰️ ОПЛАТА: ➡️ Первый платеж: при заключении договора 20 000р (носит символический характер, служит для брони бригады) ➡️ Второй платеж: оплата фундамента (при монтаже) ➡️ Третий платеж: оплата материала для каркаса (при получении на участке) ➡️ Далее раз в неделю по смете (оплата за выполненные работы плюс закупка материалов на следующую неделю) ⚠️ Уважаемые клиенты, остерегайтесь компаний которые берут крупные авансы, оказаться и без дома и без денег, гораздо проще чем кажется на первый взгляд. 〰️〰️〰️〰️〰️〰️〰️〰️〰️〰️〰️ СРОКИ: Как правило от заявки до сдачи проходит не более 2 месяцев. Срок строительства фиксируется в договоре. Так как оплата поэтапная, не в наших интересах затягивать сроки, в наших интересах работать быстро и что важно качественно. 〰️〰️〰️〰️〰️〰️〰️〰️〰️〰️〰️ Будем рады ответить на Ваши вопросы по телефону в любое время. Присылайте свои проекты, схемы, пожелания, с удовольствием посчитаем. Так же можем увидеться в офисе на Софийской, есть много фото и видео по построенным домам. Самый лучший вариант конечно приехать на наши строящиеся объекты, пройтись по дому, все пощупать, обсудить вопросы сидя на веранде, это гораздо интереснее чем посмотреть 100 фотографий.
- Регион: Санкт-Петербург
- Город: Кронштадт
- Адрес: Санкт-Петербург, Кронштадтский р-н, Кронштадт
- Цена: 2332000р
На карте

